札幌市内には、緩やかな傾斜をもつ住宅地が多くあります。
一般的には、土地を平らに整えてから建てる方法が取られますが、必ずしもそれが最適とは限りません。
造成を行えば、土留めにかかる費用が数百万円から、場合によっては数千万円に及ぶこともあります。
敷地の高低差をそのまま受け入れ、断面で空間を組み立てていくことで、土地の持つ特徴を活かした住まいが生まれます。
造成を行わないことで、土工事の負担を抑えることができ、周囲の環境とも無理のない関係が生まれます。
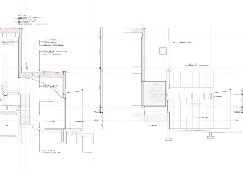
一方で、その分、基礎工事の難易度は上がり、設計の精度がより重要になります。
また、高低差を活かすことで、室内に自然な視線の抜けが生まれ、単純な平面では得られない奥行きのある空間になります。
例えば、道路側からの視線をコントロールしながら奥に向かって開いていく構成や、床のレベル差によって緩やかに空間を分ける方法などがあります。
これにより、内と外の関係が立体的に重なり合い、日常の中に豊かな変化が生まれます。




「イヌエンジュの家」の詳細は下記よりご覧ください
https://atelier-02.com/case/living/5160
「rassembler」の詳細は下記よりご覧ください
https://atelier-02.com/case/living/5418
敷地の条件は、制約ではなく設計の手がかりです。
一見すると不利に感じられる要素も、設計によって価値へと転換できることがあります。
その場所にある高低差や周囲の環境を読み取り、素直にかたちにしていくことで、その土地にしかない住まいになります。
ATELIER O2では、札幌および近郊において、傾斜地や変形地の住宅設計、別荘、商業建築のご相談を受けています。
敷地の購入前の段階からでも構いませんので、お気軽にご相談ください。